当前位置: > 效果图 > 家装效果图 >
设计风格
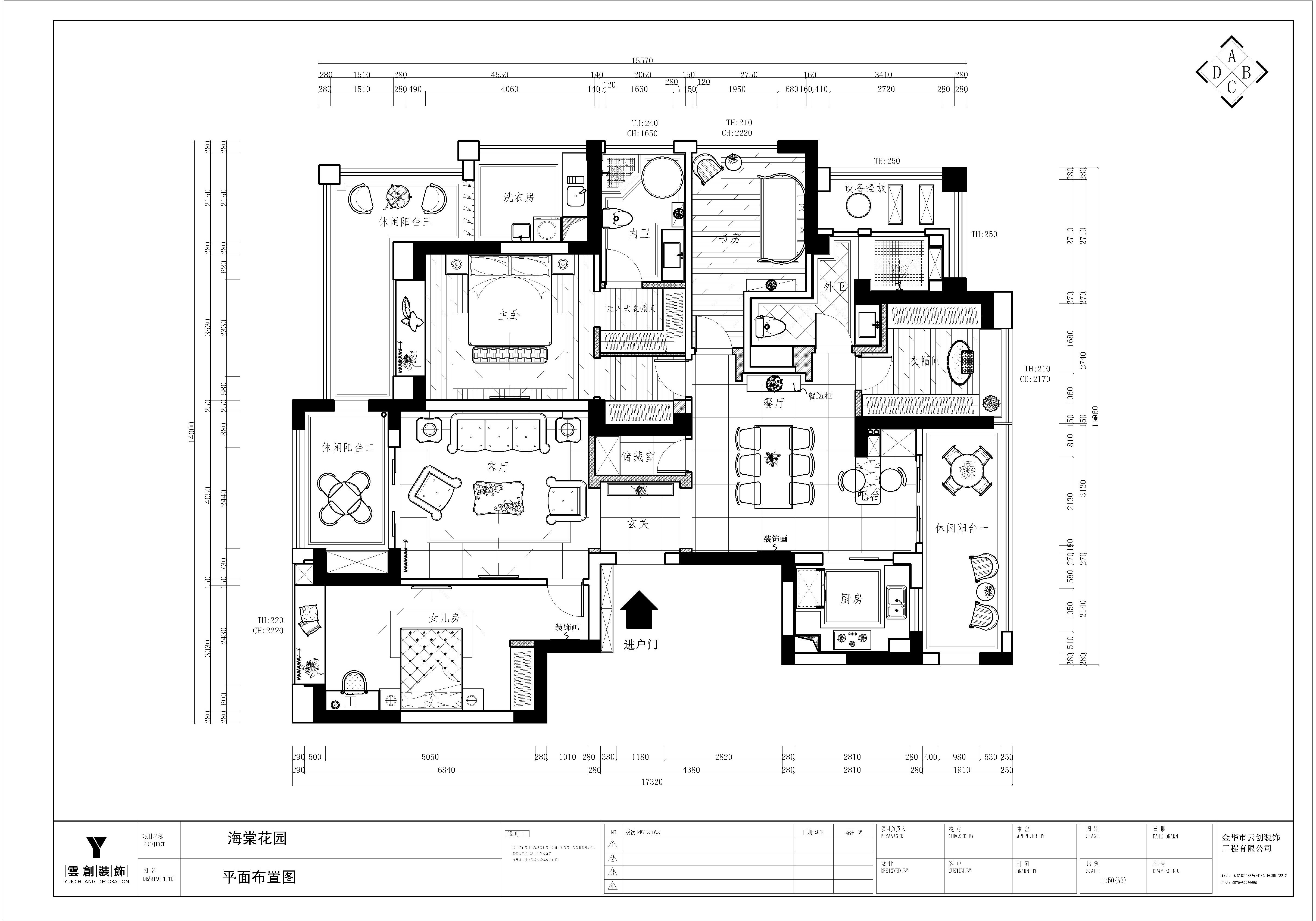
东南亚
设计空间
客厅
设计面积
176
空间名称
海棠花园
主设计师
周鑫标
打折优惠
15万
本案例设计师简介

姓名:周鑫标

职位:设计师

确认报名
相关案例
江畔枫景苑450平现代卧室客厅效果
凤凰苑现代家装客厅3d效果图制作
保集外滩家装简约客厅3d效果图制
御园 170平 小美风格

预测设计费用

房屋户型
设计内容
套内面积
设计风格
设计空间
您的称呼
手机号码
短信验证码
获取验证码
智能系统报价
人工精准报价
快速导航